實驗室凈化車間
發布時間:2021-03-15 17:55:49
潔凈實驗室、生物安全實驗室主要用于微生物學、生物醫學、生物化學、動物實驗、基因重組以及生物制品 等研究使用的實驗室。生物安全實驗室由主實功能實驗室與其他實驗室及輔助功能用房組成。生物安全實驗室必須保證人身安全、環境安全、廢棄物安全和樣本安全,能長期而安全地運行,同時還為需要實驗室工作人員提供一個舒適、而良好的工作環境。DNA實驗室平面布局圖
發布時間:2021-03-15 17:55:49
潔凈實驗室、生物安全實驗室主要用于微生物學、生物醫學、生物化學、動物實驗、基因重組以及生物制品 等研究使用的實驗室。生物安全實驗室由主實功能實驗室與其他實驗室及輔助功能用房組成。生物安全實驗室必須保證人身安全、環境安全、廢棄物安全和樣本安全,能長期而安全地運行,同時還為需要實驗室工作人員提供一個舒適、而良好的工作環境。DNA實驗室平面布局圖
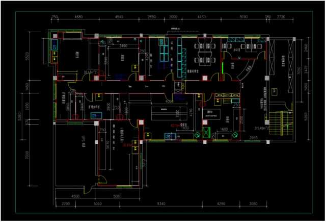
潔凈實驗室、生物安全實驗室主要用于微生物學、生物醫學、生物化學、動物實驗、基因重組以及生物制品 等研究使用的實驗室。
生物安全實驗室由主實功能實驗室與其他實驗室及輔助功能用房組成。
生物安全實驗室必須保證人身安全、環境安全、廢棄物安全和樣本安全,能長期而安全地運行,同時還為需要實驗室工作人員提供一個舒適、而良好的工作環境。
DNA實驗室平面布局圖

地 址:杭州市余杭區瓶窯鎮國輔路83號2樓201